2D, 3D & 4D Grundrisse, Visualisierungen und Renderings für Ihr Zuhause
Mit präzisen Grundrissen und realistischen 3D-Visualisierungen bringen wir Ihr Bau- oder Renovierungsprojekt schon vor dem ersten Spatenstich zum Leben.
Einführung – Präzision trifft Visualisierung
Ein Grundriss ist weit mehr als eine Zeichnung – er ist die Basis für jede Planung und Entscheidung rund um Ihr Zuhause. Bei WENET AG kombinieren wir präzise 2D Grundrisse mit detaillierten 3D Visualisierungen und ergänzen diese durch 4D-Planung, sodass Sie Ihr Haus oder Ihre Wohnung schon vor Baubeginn realistisch und im zeitlichen Ablauf erleben können.
Unsere Expertise ermöglicht Ihnen, Räume intuitiv zu verstehen, Gestaltungsideen auszuprobieren und sichere Entscheidungen zu treffen – ganz ohne Überraschungen.
2D Grundrisse, 3D Visualisierungen, Matterport-Scans & 4D BIM
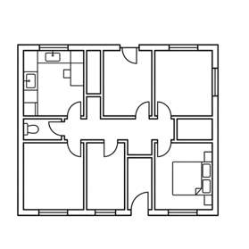
2D Grundrisse
- Massstabsgetreue Darstellung aller Räume, Wände, Türen und Fenster
- Perfekt für Bauanträge, Renovierungen oder Umgestaltungen
- Lieferung als PDF oder CAD-Dateien für Architekten oder Handwerker
3D Grundrisse
- Realistische 3D-Modelle für ein besseres Raumgefühl
- Interaktive Ansichten zur Planung von Möbeln, Materialien und Einrichtung
- Unterstützt Entscheidungen bei Neubau oder Umbau
Matterport-Scans
- Hochpräzise 3D-Scans Ihrer realen Räume in allen Details und Massen
- Virtuelle 360°-Rundgänge für eine immersive Raumwahrnehmung
- Ermöglicht exakte Vermessungen und einfache Planung von Renovierungen oder Einrichtung
4D BIM
Bei WENET AG setzen wir auch 4D BIM ein, um dem 3D-Modell die Dimension Zeit hinzuzufügen und Bauprozesse noch transparenter und effizienter zu gestalten. Durch unsere enge Zusammenarbeit mit den Kunden optimieren wir Abläufe, während der Kunde jederzeit die Kontrolle über alle prozessbezogenen Aspekte behält.
Nuestro proceso
1. Projektbriefing
Wir besprechen Ihre Vorstellungen und Anforderungen.
2. 2D Grundriss Erstellung
Präzise, massstabsgetreu und übersichtlich.
3. 3D Modellierung & Visualisierung
Realistische Darstellung Ihrer Räume.
4. Feedback & Revision
Änderungen und Feinabstimmung nach Ihren Wünschen.
5. Finale Lieferung
Fertige Pläne, Renderings und optionale Animationen.
Ihre Vorteile mit WENET AG
Eine durchdachte Planung ist der Schlüssel zu einem erfolgreichen Bau- oder Renovierungsprojekt. Mit den Leistungen von WENET AG erhalten Sie nicht nur präzise Grundrisse und hochwertige Visualisierungen, sondern vor allem eine klare Entscheidungsgrundlage für Ihr Zuhause.
- Realistische Vorschau Ihres Projekts bereits vor Baubeginn
- Mehr Sicherheit bei Entscheidungen zu Raumaufteilung, Materialien und Einrichtung
- Zeit- und Kostenersparnis durch frühzeitige, präzise Planung
- Hochwertige Visualisierungen für ein besseres Raumgefühl
- Flexible Anpassung an Ihre individuellen Wünsche und Vorstellungen
So schaffen wir die Grundlage dafür, dass Ihr Projekt von Anfang an klar, effizient und ohne unnötige Umwege umgesetzt werden kann – mit einem Ergebnis, das Ihren Erwartungen entspricht.
Grundriss oder Visualisierung anfragen
Starten Sie Ihr Projekt mit WENET AG – wir beraten Sie unverbindlich und erstellen ein individuelles Angebot für Ihr Zuhause.